
« Was ist Gebäudetyp E » ?
Développée au début des années 2020, Gebäudetyp E ou « type de bâtiment E » est une initiative allemande reposant sur une proposition de la Chambre bavaroise des architectes, notamment soutenue par le ministère fédéral du Logement (Bundesministerium für Wohnen, Stadtentwicklung und Bauwesen) et plusieurs Länder.
L’abréviation « E » prend tout son sens dans les termes « Einfach » (simple) ou « Experimentell » (expérimental) dès lors qu’il existe une volonté forte de glisser d’une approche entièrement normée vers une approche simplifiée, basée sur les besoins essentiels et réels des utilisateurs, sans compromettre les objectifs de qualité et de sécurité d’une construction (stabilité structurelle, réglementations feu, même si ces dernières sont allégées, et énergie) et permettant de se distancer de certaines normes (DIN). En matière de planification et de construction, il existe en Allemagne comme ailleurs de nombreuses règles et recommandations qui laissent peu de marge de manœuvre aux architectes et équipes de maîtrise d’œuvre pour simplifier leurs projets tout en garantissant une sécurité juridique, ce qui tend à rendre la construction plus coûteuse.
Le principal objectif ici visé est donc bien d’en revenir à une conception raisonnée et pragmatique et les déclinaisons de cet objectif sont donc bien l’accélération des processus de construction, une simplification de ceux-ci (relecture des réglementations urbanistiques dont certaines sont redondantes ou obsolètes ; réduction des contraintes normatives – normes acoustiques, température de consigne de certaines pièces ou obligation du « tout à la ventilation mécanique » par exemple ; réduction de certaines quantités de matières ou d’appareillages – suppression des ascenseurs – ainsi que du superflu, par exemple avec une forte diminution du nombre réglementaire de places de stationnement), une diminution globale des coûts y afférents afin de rendre la construction plus abordable ainsi qu’une durabilité accrue au travers de pratiques circulaires et bas-carbone (usage de matériaux alternatifs ou de réemploi). Indirectement, cette approche ouvre la voie à plus d’expérimentation, le Code bavarois de la Construction ayant établi une base juridique favorable permettant la réalisation actuelle d’une vingtaine de projets-pilotes.
Le premier projet pilote achevé, la « maison presque sans chauffage » a été inauguré le 5 novembre 2025 à Ingolstadt.
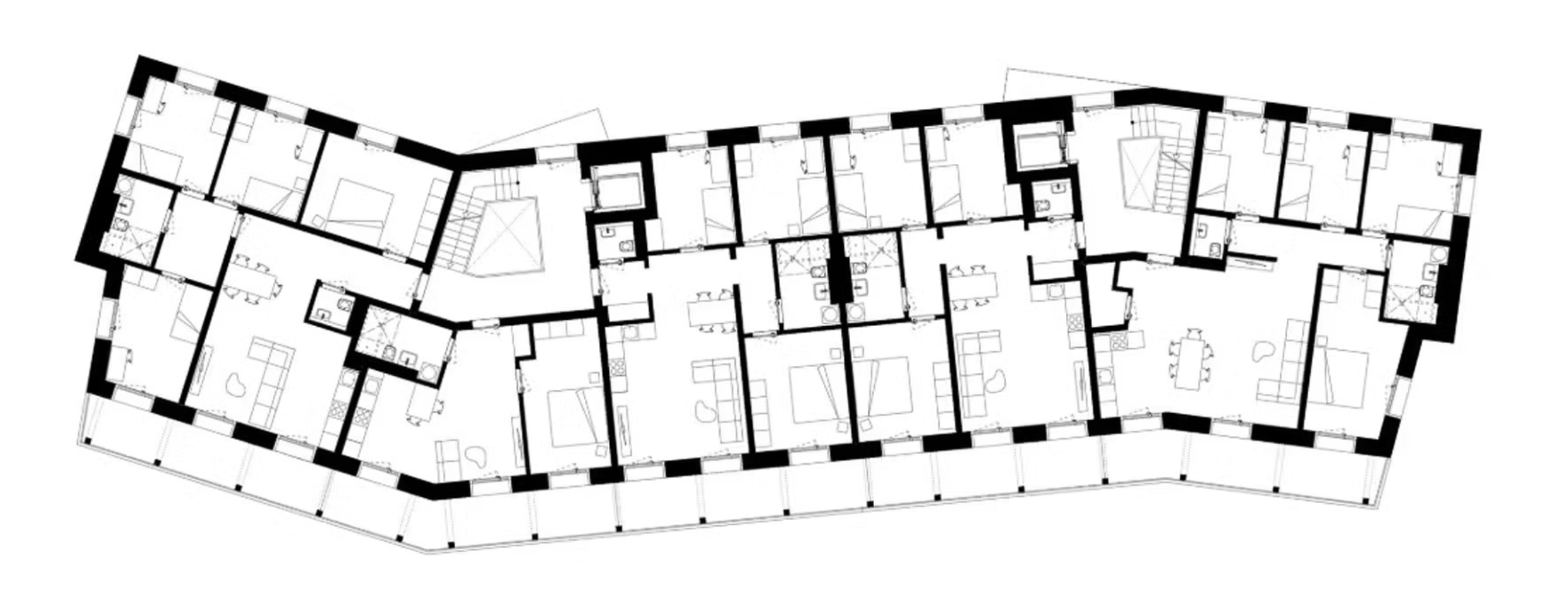
Pour le projet précité, le maître d’ouvrage - la société Gemeinnützige Wohnungsbaugesellschaft Ingolstadt GmbH (GWG), avec un soutien financier de l’État libre de Bavière à concurrence de 5,8 millions d’euros sous forme de subventions -, a choisi de mettre en œuvre les principes du 2226, se traduisant par un allègement considérable des installations techniques, sans aucun renoncement à la qualité de vie à l’intérieur du bâtiment : en résumé, pas de systèmes de chauffage ou de refroidissement, une ventilation naturelle contrôlée au travers des fenêtres, un projet élaboré comme construction massive favorisant une inertie thermique élevée. Le système de contrôle de la qualité de l’air intérieur assure le maintien d’un taux d’humidité optimal dans le bâtiment au travers de capteurs installés dans les pièces, capteurs qui mesurent en continu la température, l’humidité et le taux de CO₂, et commandent l’ouverture automatique des fenêtres à battants pour garantir le renouvellement de l’air. Pour les périodes plus froides et uniquement en cas « d’urgence », un chauffage électrique fonctionnant par rayonnement (« papier chauffant » intégré aux enduits intérieurs) fournit les calories supplémentaires. Dans ce type d’approche, la production d’eau chaude sanitaire devient de facto le poste réclamant la plus grosse demande énergétique ; à ce sujet, chaque appartement dispose d’une unité de production instantanée décentralisée, évitant les fastidieux et coûteux réseaux de distribution classiques.
Les baies extérieures aux profondes embrasures ainsi que les balcons en surplomb rendent inutiles tous les dispositifs de protection solaire. Le projet se compose de matériaux simples, peu transformés, démontables et simples à recycler, les matériaux « composites » ayant été bannis. Le programme comprend l’achèvement de quinze appartements respectivement de deux, quatre et cinq pièces, adaptés aux personnes à revenus faibles et moyens. Grâce au concept de mobilité déployé, le programme d’architecture renonce à la présence de stationnements souterrains. Combiné à l’absence de caves, les espaces de rangement des appartements étant intégrés aux espaces extérieurs, le projet fait l’économie de la construction d’un sous-sol, acte non négligeable dans le calcul de l’impact environnemental du projet. Les coûts de construction, de maintenance, ainsi que l’efficacité énergétique et les coûts du cycle de vie sont ainsi optimisés.
Rédaction : Régis Bigot, architecte & Innovation Project Manager Neobuild GIE
Illustrations : ©emeinnützige Wohnungsbaugesellschaft Ingolstadt GmbH, Bayerische Ingenieurekammer-Bau
Pour de plus amples informations : https://www.gebaeudetyp-e.bayern.de/



